NE ARIYORSUN?
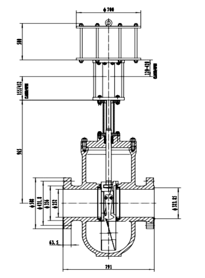
GEKO Valves & Controls, müşterilerinin özel gereksinimlerine yanıt olarak, 10" özel bir çözüm tasarlayıp başarıyla teslim etti. Çift Kapılı Kontrol Vanaları Ham petrol nakliye boruları için. Bu özelleştirilmiş vana çözümü, değerli müşterilerimizden yaygın bir beğeni ve onay aldı.

Hassas Mühendislik: GEKO, 10" lik motoru tasarlamak için kapsamlı uzmanlığından yararlandı. Çift Kapılı Kontrol Vanaları ham petrol taşımacılığında optimum kontrol ve performansı garanti ederek hassasiyetle çalışır.
Çift Kapılı Tasarım: Çift kapılı tasarımın kullanılması, vananın ham petrol akışını verimli bir şekilde düzenleme kabiliyetini artırır. Bu özellik, nakliye sürecindeki dalgalanmalara karşı gelişmiş kontrol ve tepki kabiliyeti sağlar.
Malzeme Seçimi: GEKO'nun kaliteye olan bağlılığı, ham petrol taşımacılığının zorlu ortamında dayanıklılık ve güvenilirliği garanti altına alan malzemelerin dikkatli seçiminde yansıtılmaktadır.
Özelleştirilmiş 10" Çift Kapılı Kontrol Vanaları titiz test ve değerlendirmelerden geçti ve müşteri çözümden son derece memnun olduğunu ifade etti. Vanalar, ham petrolün nakliye boru hattından akışını düzenlemede olağanüstü bir performans sergiledi.
Optimize Edilmiş Ham Petrol Akışı: Özelleştirilmiş çözüm, müşterinin ham petrol nakliye sürecinin optimize edilmesini ve ham petrol akışı üzerinde hassas kontrol sağlanmasını garanti altına alarak operasyonel verimliliğe katkıda bulunur.
Güvenilir Performans: GEKO'nun hassas mühendislik ve yüksek kaliteli malzemelere olan bağlılığı, güvenilir ve tutarlı vana performansına dönüşerek, duruş süresini ve bakım gereksinimlerini en aza indirir.
Gelişmiş Kontrol: Vanaların çift kapılı tasarımı, müşteriye gelişmiş kontrol olanakları sunarak ham petrol nakliye sürecinin daha iyi yönetilmesine olanak tanır.
GEKO Vanalar ve Kontroller 10" Çift Kapılı Kontrol Vanaları için özelleştirilmiş bir çözüm sunmadaki başarımız, müşteri beklentilerini karşılama ve aşma konusundaki kararlılığımızı vurgulamaktadır. Müşterimizden aldığımız onay, özel yaklaşımımızın etkinliğini teyit etmekte ve GEKO'yu zorlu pazarlarda uzmanlaşmış vana çözümleri için güvenilir bir ortak olarak göstermektedir. Ham petrol nakliyesi alanında. Bizimle iletişime geçin: info@geko-union.com